
Škola Březno
Návrh vychází z centrálního umístění školy v obci a z faktu, že různorodost provozu spolu s nemožností oplocení areálu vedou k otevřenému a rozmanitému fungování budovy. Nechceme, aby jednotlivé funkce zanikly v celku objektu, ale aby každá získala své vlastní místo s odpovídajícím veřejným prostorem. Tuto rozmanitost funkcí a prostorů dále umocňujeme materiálovou, konstrukční i vegetační pestrostí.
CELKOVÉ ARCHITEKTONICKÉ ŘEŠENÍ
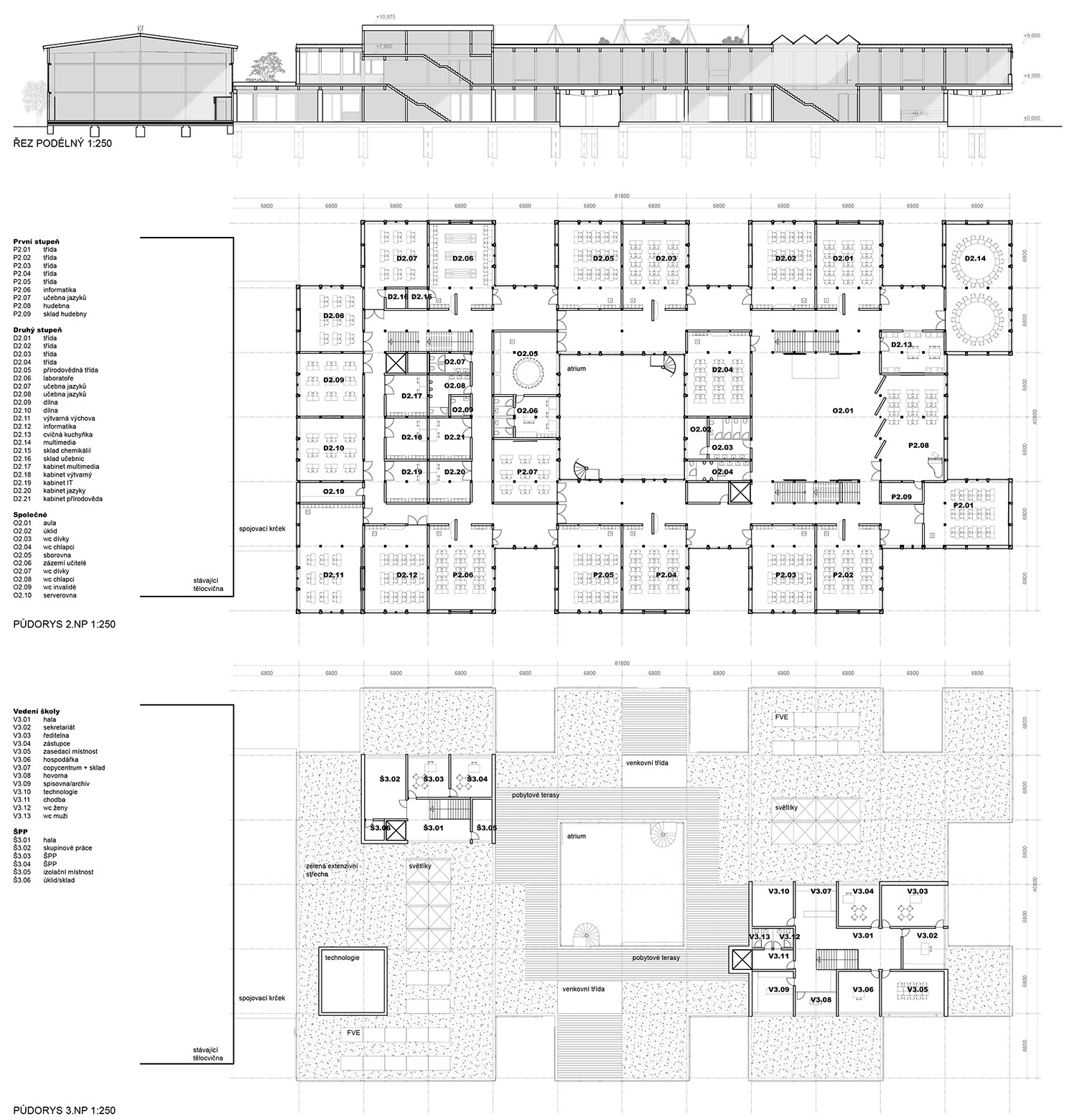
Pokud se má nová škola stát společenských centrem spojujícím obyvatele obce, je důležité, aby se zde každý cítil jako doma, v bezpečí, aby zde každý měl to své místo a to ať preferuje klidnou terasu v zeleni, sdílený prostor auly, či velkolepou dvoranu. Aby tento multifunkční objekt stále fungoval jako škola, musí také nabídnout bezpečné útočiště dětem. Prolnutí těchto aspektů se snažíme docílit vyzdvižením hlavního provozu školy do druhého podlaží a jeho usazením na veřejné a poloveřejné funkce. Potřebu denního osvětlení pro třídy a vytvoření osobitých veřejných prostor k jednotlivým funkcím naplňujeme pomocí tvarové člennitosti stavby. Ta je dosažena díky modulránímu konstrukčnímu systému. Škola, která je sama o sobě je velkým vstupem do menší obce, tak získává příjemné drobnější měřítko. To dobře reaguje na okolní kontext a měřítkově více odpovídá svým primárním uživatelům, tedy dětem.
Cílem bylo nezůstat u rozmanitosti pouze prostorové ale také materiálové a vegetační, tak aby se prostor školy stal inspirativním prostředím pro mladou generaci. Budova je tak tvořena rozsáhlou škálou materiálů, z nichž každý ale využivá své pozitivní vlastnosti. Beton roznáší hlavní zátěž a odolává záplavovému zatížení, montované dřevěné prvky tvoří rastr lehkého druhého podlaží a v kombinaci s izolačními deskami konopného betonu tak nabízí ekologičtější variantu výstavby a nakonec kovové konstrukce na střeše chrání stavbu před srážkami.
PROVOZNÍ ŘEŠENÍ
Hlavní myšlenkou uspořádání stavby je umisťování funkcí, které mohou sloužit veřejnosti do přízemí. Kromě toho, že jsou tedy součástí školy mají následující provozy svůj vlastní vstup s odpovídajícím veřejným prostorem: kavárna, družina, knihovna, školní klub, jídelna, keramická dílna a sport. Zároveň se v prvním podlaží nachází hlavní vstup do budovy, který je umožněn jak z východu od ulice Nechranická, tak ze západní strany z centrálního dvora. Hlavní provoz školy je pak tedy vyzdvižen do druhého podlaží, kde budou mít děti klid na učení. Rovněž je zde umístěna aula, která bude sice občas sloužit kulturním akcím, v běžný den nám však přijde správné tento velkorysý prostor nabýdnout dětem. Třetí ustoupené podlaží je pak vyhrazené pro vedení školy a pracovny ŠPP. Část střechy však také poskytujeme kvůli absenci oplocení školy jako chráněný exteriérový prostor s venkovními učebnami. Ústřední kontrolní bod se nachází ve vstupní hale v podobě recepce, ta je pak také umístěna u vstupu pro veřejnost do sportovní sekce objektu.
KRAJINÁŘSKÉ ŘEŠENÍ
“Nová škola je vznášedlem levitujícím nad nivní krajinou potoka Hutná. Její okolí z jedné strany navazuje na přirozené tvarosloví proudnic potoka, zatímco z druhé na rastrovou zástavbu okolní obytné čtvrti.” Návrh okolí nové školy v Březně vychází z místních podmínek a z pozice pozemku v rámci katastru obce. Pozemek se nachází v záplavové – rekreační oblasti potoka Hutná. Současně přes pozemek prochází přirozená spojnice mezi centrem obce a nádražím. Tato specifika v návrhu zohledňujeme. Nabízíme průchodnost pozemku všemi směry pro veřejnost a současně vytváříme plochy pro pobyt dětí i dospělých. Ploty nejsou v záplavové oblasti vhodné – toto respektujeme a využíváme jako plus celého projektu. Oproti běžné škole má škola v Březně díky své poloze možnost působit otevřeně, transparentně a přitom důstojně v kombinaci s funkcemi pro veřejnost a v napojení na okolní krajinu/přírodu. Vším jako stuha prochází stávající inline dráha, jejíž polohu respektujeme a do návrhu integrujeme. Svou formou škola dělí prostor mezi tenisovým kurtem a tělocvičnou na 3 prostory. U řeky, v těsné blízkosti školy a směrem k nádraží. V prostoru u řeky navrhujeme okolí tak, aby přirozeně plynulo a navazovalo na potok Hutná. Neumisťujeme zde žádné překážky, které by mohly v případě povodně vadit odtoku vody. Vytváříme několik sníženin, které jsou v podloží oddrenážovány směrem k řece a v případě povodní jsou schopny pojmout větší množství vody. Jinak slouží jako chráněná místa aktivit, ať už fitness či herních prvků pro děti. Prostor mezi nimi a stromy je navržen jako méně často sečený druhově pestrý trávník, ve kterém jsou vysekávány cestičky a pobytová místa v rámci sníženin. Prostor samotného potoka zpřístupňujeme bodově a v rámci např. kamenů k přeskákání potoka vedle lávky atd. Kvalita vody dle správce vodoteče není příliš dobrá, přesto je ale hezké vodu přinejmenším vizuálně vtáhnout místně do atmosféry parku. V prostoru kolem školy parter začíná navazovat na její modularitu a rastorovitě přechází v místa, která funkčně navazují na vstupy do budovy – zpevněné povrchy se prolínají s retenčními. V rámci středového atria jsou navrženy dva stromy, které vtahují přírodní element dovnitř dispozice a jejich koruny poskytují pohledovou clonu v úrovni 1.NP. Stejnou funkci pak mají i stromy umisťovány do “nik” mezi jednotlivými třídami. Jejich koruny vytvářejí esteticky zklidňující atmosféru ve třídách a příjemný stín. Směrem k obytné čtvrti a nádraží se rastrovitost školní budovy nevytrácí, ale přirozeně naváže na ortogononalitu pozemků s rodinnými domy. Vytváříme velký shromažďovací prostor, který směrem od školy přechází v měkčí polozpevněný povrch až povrch travaný. Na školním náměstí je možno pořádat větší akce, ať už v rámci školy nebo pro veřejnost. V měkkých částech rastrové “sadové” krajiny jsou pak umístěny herní a fitness prvky (workout, petanque, skate prvky, ping pong stoly). Směrem k ulici pak vše zakončuje travnatý pás a poslední řada stromů. Střecha budovy plní funkci uzavřeného školního dvora, kam je možno děti vypustit bez kontroly a strachu o ně. Nemísí se zde s veřejností. Jsou zde také umístěny 2 venkovní učebny. V rámci střechy jsou v lokálně zvýšené vrstvě substrátu navrženy vícekmenné stromy. Venkovní učebny jsou zastíněny a chráněny proti dešti lehkou konstrukcí. Materiál povrchů směreme od školy změkčujeme. U budovy samotné a v rámci důležitých propojek využíváme velkoformátový červeně probarvený litý beton v rastru dilatačních spar 6,8 m, doplňujeme jej o retenční (betonovou) dlažbu připomínající cihly, přecházíme do MZK, kačírkových, pískových okrových ploch a postupně do zeleně. V rámci diagonálních propojení navazujících na hlavní ulici, propojku od náměstí a na směr k nádraží navrhujeme ponechat litý probarvený beton a tyto směry tak podpořit. Součástí směru do centra obce bychom v rámci litého betonu navrhli i novou lávku, důstojně propojující centrum obce s další veřejně důležitou stavbou, se školou. Tato lávka by pocitově byla součástí propojky a mohla by být zhotovená z probarveného vysokopevnostního betonu (UHPC) jako jeden prefabrikovaný oblouk. Zásobování a příjezd ke škole – ať už osobních aut, hasičů či zásobování – probíhá přes stávající parkoviště na východě řešeného území. Toto parkoviště může být v případě potřeby rozšířeno měkčím avšak pojížděným povrchem a kapacita tak zvětšena. Zásobování jídelny a celé školy probíhá přes plácek u slepé fasády tělocvičny, kde se mohou auta otočit. Celá okolí školní budovy je ale v rámci běžného dne bez aut. Nové tenisové zázemí navrhujeme umístit na jižní straně kurtů, v případě nutnosti je možno k němu zajet autem. Jinak tenisté a ostatní sportovci navštěvující ať už kurty či tělocvičnu parkují na vyhrazeném parkovišti a procházejí přes školní dvůr.
Modrá a zelená infrastruktura
Navazujeme na charakter okolí a vytváříme parkově upravené plochy s přírodními atributy. Návrh zeleně je založen na kombinaci různých typů travnatých ploch a stromů. Místa, která mají sloužit k hrám či pohybu lidí tvoří pravidelně sečené trávníky, kdežto méně využívané plochy jsou z trávníku druhově pestrého, který je na údržbu a vláhu méně náročný a zároveň se podílí na zvýšení biodiverzity dané lokality. Stromy jsou základním hmotovým prvkem návrhu zeleně. Druhová skladby je pestrá, složená z druhů domácích, odpovídajích stanovišti a z druhů, které dobře snášející teplotní a vlhkostní poměry. Mezi takové patří např. jilm (Ulmus resista ´Sapporo Autumn Gold´), jasany (Fraxinus angustifolia ´Raywood´), duby (Quercus palustris), olše (Alnus sp.), javory (Acer freemanii ´Autumn Blaze´), lípy (Tilia cordata), břízy (Betula pendula), jeřáb (Sorbus aucuparia ´Dodong´) či jiné. Zpevněné plochy jsou vyspádovány k drenážním dlažbám a stromovým mísám. Díky tomu bude docházet k přirozené zálivce stromů přečištění vody půdními filtry.
Vegetační střecha na budově školy je tvořena travinobylinnou druhově pestrou směsí a doplněna o několik vícekmenných stromů. Toto řešení střechy kromě izolační a estetické funkce napomáhá k zadržování vody na střeše, čímž minimalizuje zatížení dešťovou vodou prostorů v úrovni terénu.
Nakládání s dešťovou vodou
Hospodaření s dešťovou vodou je navrženo na principu zpomaleného / regulovaného odtoku vody. Ke zpomalenému odtoku a zadržování vody využíváme třístupňovou regulaci. Dešťovou vodu částečně zadržujeme na zelených střechách, přebytečná voda ze střech a z ploch v úrovni parteru je odváděna do vsakovacích rýh se strukturálním substrátem na dně opatřených drenáží. Z rýh, které jsou vzájemně propojeny, je voda odváděna do akumulačních nádrží a retenčního podloží zelených ploch – na konci řetězce prvků je systém vždy opatřen přepadem do dešťové kanalizace. Zelené plochy v okolí stromů jsou mírně snížené, tak aby do nich voda natékala a zdržovala se co nejdelší dobu. V případě vysoké hladiny spodní vody s malými výkyvy, budou tato místa ve výškách srovnatelných s okolím a tomu bude přizpůsobena druhová skladba.
SPECIFIKACE KONSTRUKCÍ A MATERIÁLŮ
Konstrukce
Vzhledem ke komplikovaným základovým poměrům je objekt založen na železobetonové desce s pasy a na pilotech, které jsou zároveň využity pro jako zdroj tepla pro tepelné čerpadlo zěme-voda – tzv. energopiloty. Konstrukce budovy je navržena jako modulární se základním čtvercovým modulem o rozměru 6,8 x 6,8m. V přízemí je navržen těžký stěnový systém a v patře hrázděná rámová konstrukce s lehkými výplněmi. Plocha patra je z provozních důvodů a kvůli omezené zastavěné ploše přízemí (povodně) větší než plocha přízemí. Vykonzolované plochy jsou podpírány masivními betonovými sloupy s paprsčitými konzolami. Skladba materiálů je záměrně pestrá a všechny materiály se snažíme přiznávat v jejich přirozených pohledových kvalitách. Konstrukce školy se tak stává didaktickou pomůckou a podporuje v dětech zvědavost a touhu objevovat materialitu prostředí, v kterém se pohybují. Přízemí je řešeno jako stěnový konstrukční systém, nosné stěny jsou z pohledového železobetonu, parapetní stěny jsou zděné z izolačních tvárnic s obkladem z lícových cihel. Celý obvod přízemní části je ztužen pomocí železobetonového věnce. Dělící nenosné příčky jsou v přízemí z lícových cihel. Strop nad 1np je dřevěný obousměrný z pohledových BSH nosníků zaklopených stropními CLT panely. Konstrukce 2np je řešena jako masivní rámová dřevostavba. Nosnými prvky jsou dřevěné sloupy a trámy. Obvodové stěny jsou vyplněny tzv. konopným betonem (Hempcrete). Konopný beton pomáhá vytvořit v interiéru tříd ideální mikroklima. Jedná se o přírodní tepelně-izolační materiál. Dřevěná konstrukce a konopný beton se pohledově uplatňují jak v interiéru, tak v exteriéru a vizuálně tak tvoří hrázděnou konstrukci. Nosná konstrukce střechy je opět z dřevěných nosníků zaklopených CLT panely. Nenosné příčky ve 2np jsou navrženy jako dřevěné trámkové, zaklopené překližkou. Druhým typem příček jsou příčky z desek Packwall (recyklovaný tetrapak), které tvoří vždy zadní stěnu tříd. Tyto příčky disponují otáčivými díly, pomocí kterých je možné variabilně propojovat prostor třídy s prostorem chodby. 3np je ustoupené polozapuštěné podlaží. Nosná konstrukce je opět dřevěná, ale fasádou se odlišuje od zbytku budovy. Fasáda je navržena jako provětrávaná s plechovým obkladem. Skladba střechy je navržena jako zelená s tloušťkou substrátu od 150 do 250 mm. Na střeše se nachází pochozí dřevěné terasy, 2 plechové pergoly – venkovní třídy a FVE panely. Z hlediska požární bezpečnosti je přízemí navrženo z nehořlavých materiálů s vysokou požární odolností. Strop nad přízemím a celé 2np i 3np jsou navrženy z masivní dřevěné konstrukce, jejíž dimenze splňují potřebnou požární odolnost.
MATERIÁLY A VÝROBKY ZVOLENÉ PRO INTERIÉR
Skladba materiálů v interiéru vychází z celkové konstrukční a materiálové koncepce. Snažíme se ukazovat materiály, z kterých je škola postavena, a to jak v exteriéru, tak v interiéru. V přízemí, kde jsou spíše veřejné fukce, jsou použity solidní odolné materiály – beton a cihla. Všechny nosné stěny jsou z pohledového betonu, na kterém se projevuje obtisk bednění z horizontálně kladených prken. Dělící příčky jsou navrženy z lícových cihel. Na podlaze je cihelná dlažba. Cihelná dlažba, která je navržena v okolí školy se tak přelévá i do interiéru. Toto materiálové propojení vnějšku a vnitřku podporuje myšlenku prostupnosti školy a její propojenosti s okolním veřejným prostorem. V patře se projevuje hrázděná konstrukce – nosné dřevěné sloupy a stropní nosníky spolu s výplněmi z konopného betonu. Konopný beton je ekologicky šetrný materiál, který dobře izoluje a akumuluje teplo, je odolný proti vodě i ohni, a díky svojí prodyšnosti umí regulovat vzdušnou vlhkost v interiéru. Podlahy v patře v pobytových místnostech a v aule jsou z přírodního marmolea v načervenalé barvě. Na chodbách je dřevěná podlaha. Ve třídách, v aule a všude tam, kde jsou zvýšené nároky na akustiku, jsou na stropních kazetách umístěny akustické panely z konopí.
Třída
Skladba materiálů v typické tříde: dřevěná nosná konstrukce – sloupy a stropní trámy, stěny z konopného betonu, konopné akustické panely na stropě, na podlaze přírodní marmoleum. Zadní stěna třídy je tvořena boxy opláštěnými recyklovanými deskami. Boxy (zadní stěna) slouží jako úložný prostor a také pro nutnou infrastrukturu – lokální VZT jednotky, umyvadlo. Prostřední díl je otočný a umožňuje tak třídu propojit s chodbou.
- Místo: Březno
- Tým: Jan Bárta, Šimon Bierhanzl, Marek Fischer, Pavla Kejdanová, Matěj Šépka, Kamila Vaníčková
- Klient: veřejný
- Stav: Soutěž
- Ocenění: 2.místo
- Landscape řešení: Landa Ruhmkorf Landscape Architekti (Lukáš Landa, Simona Rühmkorf)
